我是前期車型,一直很想後期車才有的電動尾門,因此也來惡搞一下
首先就是準備好材料,跑去台南的殺肉場拆回一堆材料,感謝老闆願意讓我自己拆
光拆卸這些材料就花了兩小時,回來裝上車又花了10小時,都是血淚阿
清單如下:
- 液壓泵浦及其固定螺帽(三顆)
- 油管及其油管螺絲、銅墊片
- HKM及其固定螺帽(兩顆)
- HKM插頭及線材、保險絲(能不剪線就不剪線)
- 行李箱蓋開關及其插頭、線材
- 斜度開關及其插頭、線材、固定螺絲(兩顆)
- 行李箱蓋馬達及其插頭、線材、固定片、固定螺絲(四顆)
- 六角鎖與帶鎖按鈕之間的拉桿
- K128灰色繼電器及其插座、線材(在車身電腦旁邊)
- 車身電腦 X253插頭的Pin 22
- 左後液壓撐桿及絞鍊
- C型環*2
- 橡膠墊*2
泵浦、HKM模組

HKM線組

液壓油管




行李箱蓋馬達

電動尾門車型的拉桿(連接六角鎖及帶鎖開關)

K128繼電器,用於控制行李箱蓋馬達

電動尾門車型的後箱蓋左邊絞練

電動尾門車型的緩衝墊

液壓撐桿的卡簧,防止液壓撐桿彈出來

記得退Pin回來使用(X253插頭的Pin 22)
整個過程比較可怕的是鑽孔(尤其是左後車身給油管通過的那個),很怕鑽偏,所以我在拆肉車的時候有順便用數位游標尺量一下孔洞大小及樣態
,左後車身的孔為直徑36mm的圓形側滑8.9mm,所圍出來的形狀、按鈕的長方形孔是61.8mm*25.3mm
建了兩個DWG檔去雷射切割兩塊不鏽鋼當模子(如下圖)


最提心吊膽的地方要來了,就是鑽車身的孔洞,因為屬於車體的一部分,鑽壞就很難處理了,鑽孔過程就看圖說明吧



鑽孔結束後即可拉出液壓油管,並且塞好防水塞


再來是要對泵浦做清潔並換新液壓油(液壓油的選擇我會在文章的後面做額外說明)


只漏光泵浦內的液壓油並加新油,則油量大概需要120mL,如果泵浦連著油管、液壓撐桿的油都漏乾淨,則需要200mL左右
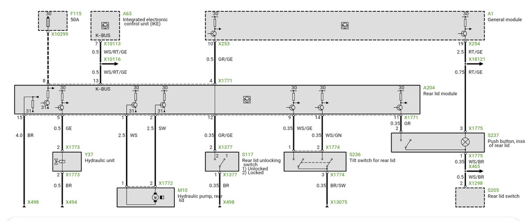
接線的部分則是看著電路圖接,這部分比較無趣就不多贅述




總結一下有四條線需要從行李箱蓋拉經過右撐桿旁邊軟橡膠套再進到車身
- 行李箱蓋開關的灰色線
- 斜度開關的 白/黃 線
- 斜度開關的 白/綠線
- 接地(可與行李箱蓋馬達的棕色線接一起再拉進車身)
兩條需要從行李箱拉到車身電腦旁
- 行李箱蓋馬達的正極輸入(灰/綠色線)
- HKM的Pin 13 (線路圖是接儀表板X10113插頭的 Pin 7,不過改接車身電腦會比較近,這條是要取K-BUS訊號)
須注意的是無電尾門的車型,其車身電腦X253插頭的Pin 22是空的,殺肉的時候記得退Pin拔回來再插回自己車上的插頭

K128繼電器的腳位也是空的,須把殺肉回來的繼電器插座的Pin腳退出並插入自己車上的
最後插入K128繼電器
安裝行李箱蓋馬達並接線
六角鎖緩衝套更換並接上電尾門車型使用的拉桿
鑽好孔位並裝上按鈕
拆絞鍊的時候,內星型螺絲容易滑牙,這部分要小心,可用加長的T30套筒配棘輪扳手,拆下的螺絲就一併帶回吧
------------------------------------------------------------------------------------------------------------------------------------------------------------------------------------------------
最後來補充一開始談到的液壓油選擇
BMW原廠是使用AeroShell Fuild 41 液壓油(符合MIL-PRF-5606規範)
而我所選擇的是AeroShell Fuild 31 液壓油(符合MIL-PRF-83282規範)
先做個簡易表格,做兩者對比
接下來就來介紹一下MIL-PRF-5606跟MIL-PRF-83282的歷史,並說明為何我沒選擇原廠用油。
--------------------------------------------------------------------
第二次世界大戰到1970年代後期,多數美軍戰機都使用符合MIL-PRF-5606規範的航空液壓油,但由於MIL-PRF-5606具有高易燃性、無法自熄和不良的火焰傳播特性,這些起火往往對飛機造成災難性的後果,所以他們開始著手弄更新的液壓油規範,也就是MIL-PRF-83282,其閃點、著火點和自燃溫度比MIL-PRF-5606高出93C。而去除火焰/熱源後,MIL-PRF-83282會自動熄滅,並具有出色的火焰傳播抑制性能。
最重要的是MIL-PRF-83282與MIL-PRF-5606完全兼容,因此不用擔心與原車上的液壓油混到
MIL-PRF-83282這類合成油也逐漸在汰換MIL-PRF-5606這類的礦物油
MIL-PRF-83282唯一缺點是低溫黏度,在-54C的時候,比MIL-PRF-5606黏一些,不過考量台灣用車環境難以達到-54C,我認為影響不大,因此權衡優缺後,才選擇Fuild 31這款航空液壓油來使用,雖然要後車箱起火的機率不大,不過具有更高防火性對車子也是好事,價格也比Fuild 41貴一些而已。
我有開設液壓油跟泵浦的賣場,連結如下:
液壓油 : https://www.ruten.com.tw/item/show?22134751743593
泵浦 : https://www.ruten.com.tw/item/show?22134752027454
如有需要的車友可以下標











